Mais informações
- Interiores: 24 7 Arquitetura
- Paisagismo: Bia Abreu
- Luminotécnica: Vertz Iluminação
- Estrutura Metálica: AM Arquitetura de Estruturas
- Fundações:Tékhton
- Elétrica:Tékhton
- Automação:Cine Claro
- Hidráulica:Tékhton
- Administração e Gerenciamento: Coletivo Obras
- Fotografias: Adriano Pacelli
- Fornecedores:
- Cobertura – telhado verde: Instituto Jardim
- Cobertura – laje treliçada: Mediterrânea
- Cobertura – laje seca (painel wall): Esplane
- Esquadrias de alumínio e Domos: MAV do Brasil
- Estrutura metálica: União Técnica
- Pisos e forro de madeira: Indusparquet
- Impermeabilização: Casa Armani
- Mobiliário: Líder Interiores
- Marcenaria: Nossa Marcenaria
- Pedras naturais: Pedras Capricórnio
- Mármores e granitos: Maxximus Marmoraria
- Pisos e Revestimentos: Portobello
- Portas de madeira: Aruã Madeiras
- Mão de obra construção: BPS Construções
- Ventilação/ar condicionado: Brumi Climatização
- Box, vidros e espelhos: Art Vidros
- Louças e metais: Obra fácil
Descrição enviada pele equipe de projeto. Com a chegada da pandemia, muitas famílias buscaram maior qualidade de vida em condomínios residenciais nas cidades do interior, e nesse caso não foi diferente.

Fotografia: Adriano Pacelli
A Casa Entreverdes está implantada em um terreno com aclive de 8 metros, 50 metros de profundidade e vista privilegiada de uma densa área de preservação permanente. O ponto de partida do projeto foi a criação de uma rampa lateral para veículos a fim de esconder os carros da rua e evitar a construção de 3 pavimentos. A proposta visou vencer o aclive com a ajuda do carro,promovendo uma distribuição mais fluída das necessidades da família.

Fotografia: Adriano Pacelli
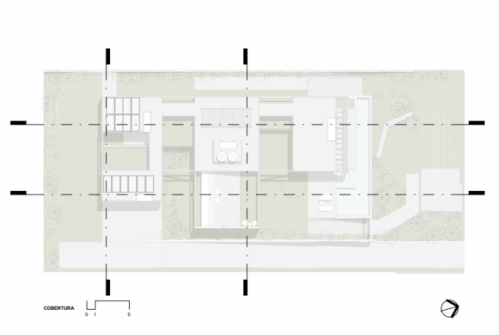
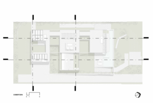
Vista de cima, o projeto revela um jogo atraente de cheios e vazios, caminhos sinuosos, áreas gramadas, um teto verde, clarabóias, patamares, escadas e um paisagismo que se integra à residência.

Fotografia: Adriano Pacelli
A todo momento do projeto, refletíamos sobre a relação da casa com a mata que circunda o condomínio e como seria prazeroso que essa paisagem servisse de pano de fundo para os moradores nos espaços de maior permanência.

Corte AA

Esquema Explodido
A escolha acertada de posicionar o pavimento térreo na cota mais alta permitida pelo regulamento do condomínio, não apenas fortaleceu essa conexão desejada com a mata, mas também atendeu ao nosso anseio de colocar a área de lazer na parte frontal do terreno, garantindo privacidade em relação aos que passassem pela rua.

Fotografia: Adriano Pacelli
Uma caixa de concreto aparente, parcialmente em balanço, abriga a piscina de forma a não ser percebida da rua e da calçada.

Fotografia: Adriano Pacelli
A estrutura é formada por um sistema misto de concreto e vigas metálicas treliçadas com fechamento em alvenaria, criando uma estética interessante na volumetria.

Fotografia: Adriano Pacelli
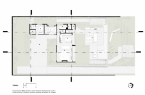
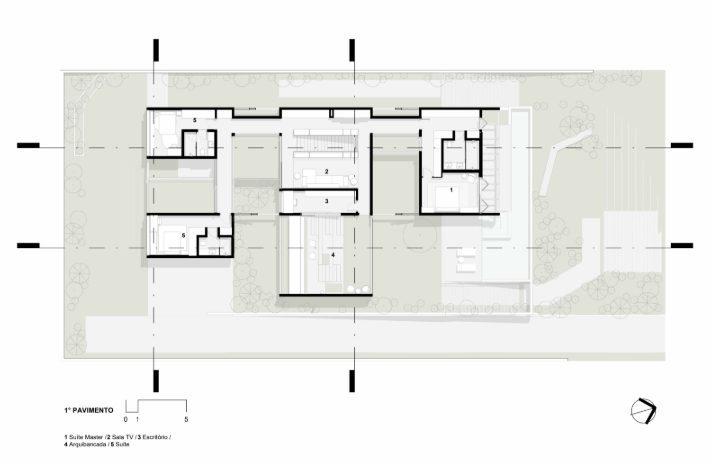
A residência é composta por áreas íntimas no pavimento superior, onde também projetamos uma arquibancada para que a família pudesse desfrutar de um espaço agradável e privilegiado para contemplar a vista e realizar atividades ao ar livre.

Fotografia: Adriano Pacelli
Localizado 5 metros acima da rua, o pavimento térreo abriga a área de lazer na parte frontal do terreno, proporcionando maior exposição ao sol, privacidade em relação aos vizinhos atrás e um contato mais próximo com a mata.

Fotografia: Adriano Pacelli
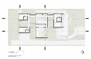
Além das áreas de estar e serviços, a casa dispõe de um escritório e uma suíte para hóspedes no térreo. Dois vazios laterais à sala permitem a entrada abundante de luz e ventilação em praticamente todos os cômodos que se fecham para o oeste e se abrem para o norte e para o sul.
Galeria do projeto:


