Em um mercado cada vez mais saturado de espaços comerciais genéricos, o Miura Showroom surge como um contraponto silencioso e preciso. Projetado pela Takenaka Corporation, o edifício traduz com clareza um princípio essencial da arquitetura contemporânea japonesa: menos forma, mais intenção.
Aqui, o espaço não é apenas um suporte para exposição — ele é parte ativa da narrativa da marca.

Fotografia: Tomoki Hahakura
A Miura Co., Ltd., conhecida por seus sistemas industriais e soluções térmicas, precisava de um espaço que comunicasse seus valores: eficiência, tecnologia e confiabilidade.
A resposta não veio através de excesso visual, mas do oposto:
- linhas limpas
- composição rigorosa
- controle absoluto dos elementos
O showroom não “explica” a marca — ele encarna a marca.

Fotografia: Tomoki Hahakura
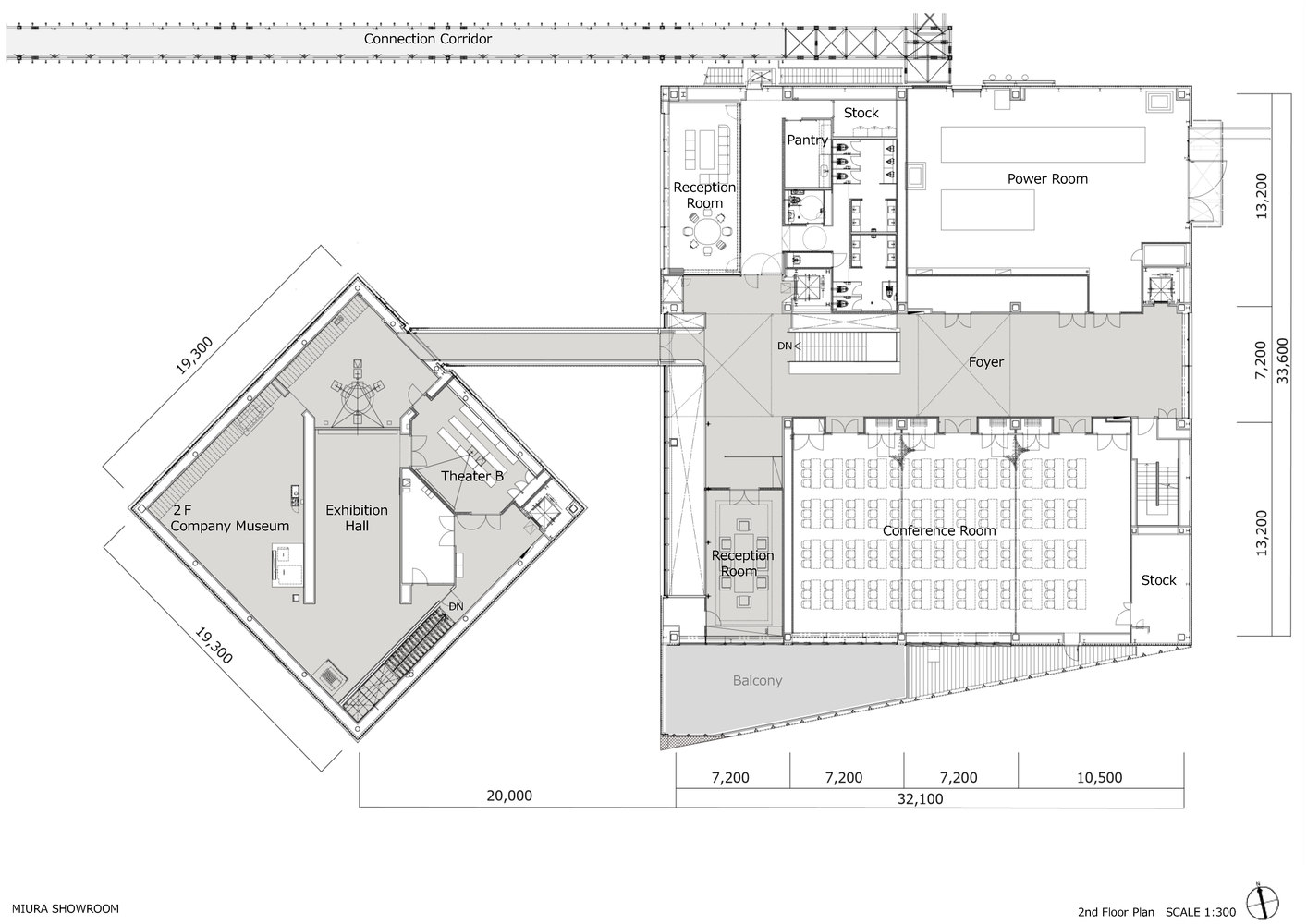
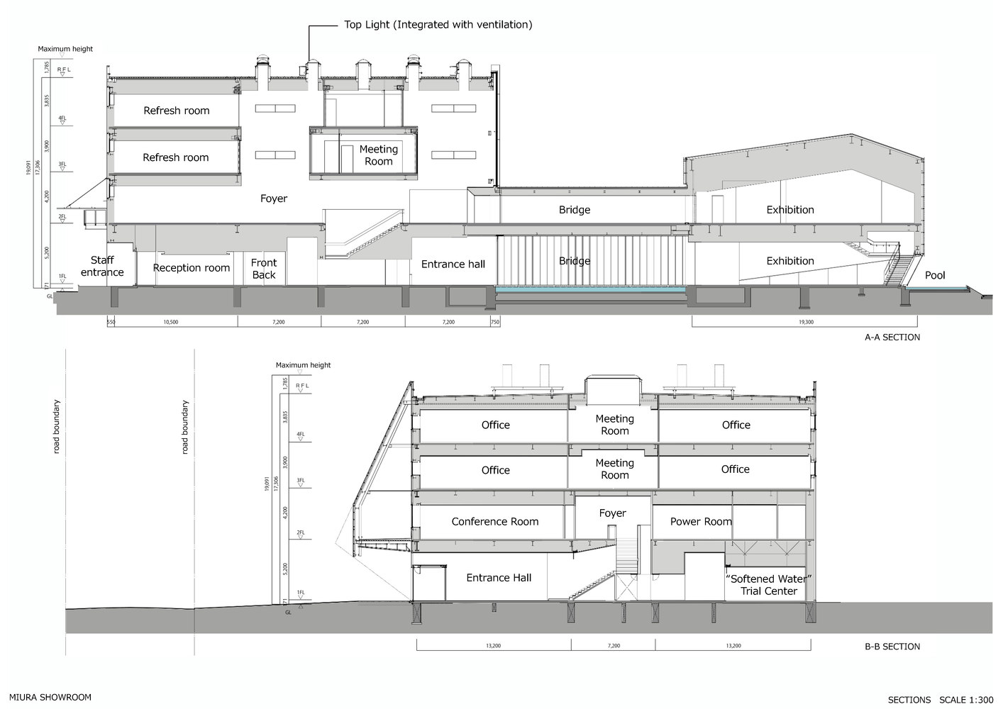
O projeto se estrutura a partir de uma volumetria clara e contida, onde cada elemento parece estar exatamente onde deveria estar — nada sobra, nada falta.
A linguagem é marcada por:
- planos bem definidos
- ritmo controlado de aberturas
- proporções precisas
Essa abordagem remete diretamente à tradição japonesa de buscar equilíbrio entre ordem e vazio.

Fotografia: Tomoki Hahakura
Os materiais são escolhidos não apenas pela estética, mas pelo desempenho e coerência com o universo da marca:
- superfícies metálicas e painéis industriais
- vidro como elemento de transparência e precisão
- acabamentos impecáveis, quase silenciosos
O detalhe construtivo é tratado com obsessão — característica típica da cultura construtiva japonesa e do próprio histórico da Takenaka, uma das mais antigas empresas de construção do mundo.

Fotografia: Tomoki Hahakura
A iluminação natural é utilizada de forma estratégica, nunca excessiva. Entradas de luz são cuidadosamente posicionadas para valorizar produtos expostos, reforçando a leitura dos volumes e criando uma atmosfera técnica e controlada. A luz não é dramática, é precisa.
O showroom organiza o fluxo do visitante de forma quase intuitiva. Não há excesso de sinalização ou condução explícita. Em vez disso, o espaço orienta pelo próprio desenho as transições suaves entre os ambientes com uma hierarquia clara de espaços e pontos de foco bem definidos.
Essa fluidez reforça a ideia de eficiência — o usuário entende o espaço sem esforço.

Fotografia: Tomoki Hahakura
O projeto se insere em uma lógica global de showrooms como espaços de experiência, aproximando-se de estratégias adotadas por marcas tecnológicas e industriais que utilizam a arquitetura como ferramenta de posicionamento.

Fotografia: Tomoki Hahakura
O grande mérito do Miura Showroom está em entender que, hoje, um espaço corporativo precisa ir além da função básica. Ele precisa comunicar valores, ferar percepção de qualidade e construir confiança. E isso não se faz com excesso, mas com coerência absoluta entre arquitetura e marca.
Galeria do projeto:



