Mais informações:
- Fabricantes: EQUITONE
- Categoria: Casas
- Estrutura: Yasushi Moribe
- Coordenação Têxtil: Yoko Ando
- Área Do Terreno: 244 m2
- Cidade: Hiroshima
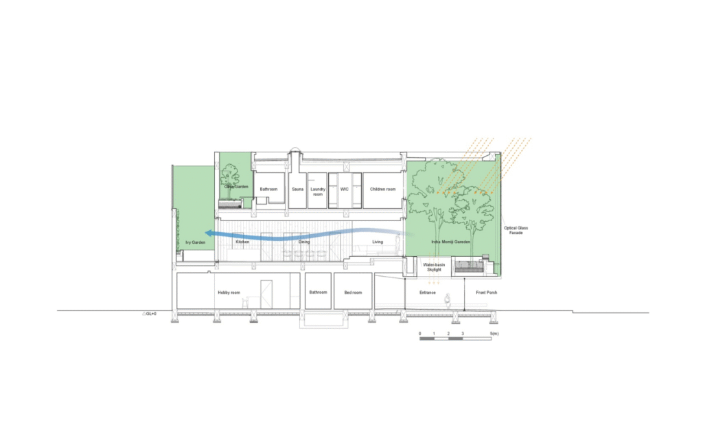
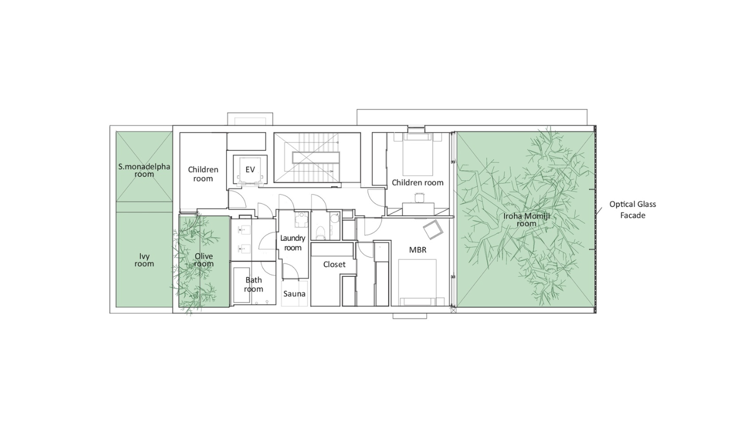
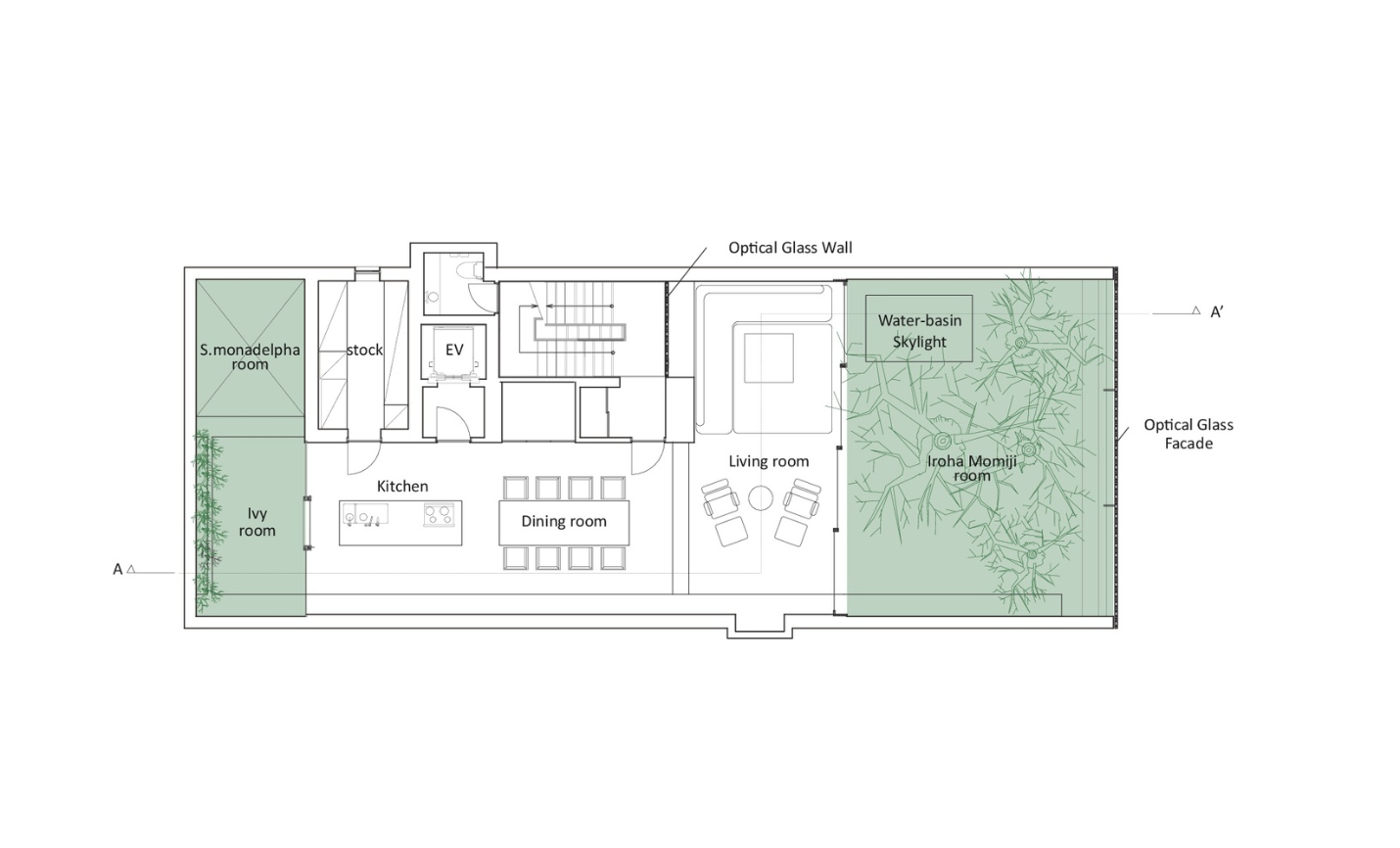
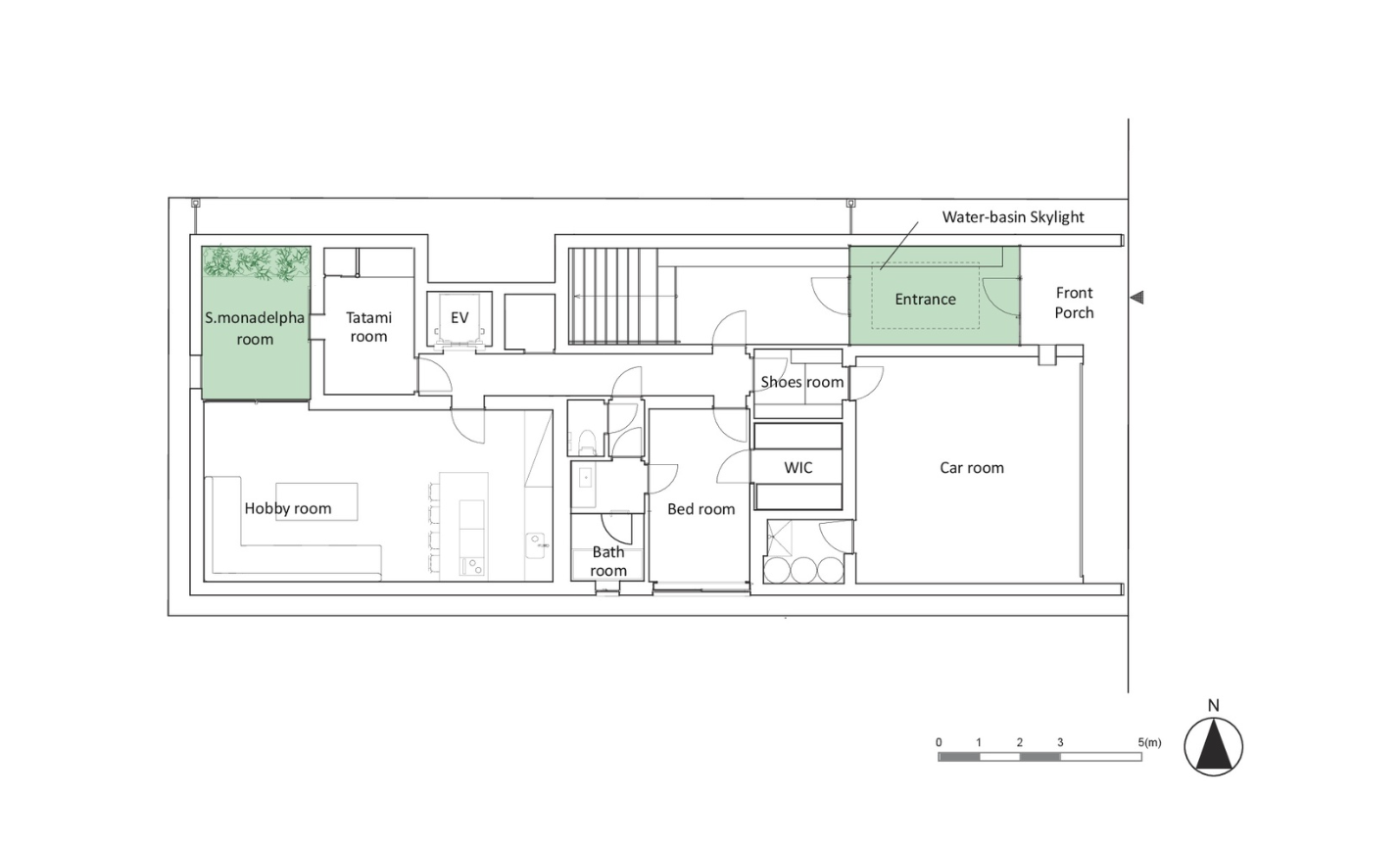
Descrição enviada pela equipe de projeto. Essa residência está localizada entre edifícios altos no centro de Hiroshima, com vistas para uma rua movimentada. Para obter privacidade e tranquilidade neste entorno projetamos um jardim e uma fachada de vidro óptico ao lado da rua. O jardim é visível desde todas as habitações e a paisagem dos carros e ônibus que passam constantemente confere uma riqueza para a vida cotidiana da casa. A luz solar do leste, que é refratada através do vidro, cria bonitos padrões de luz. A chuva que atinge a claraboia cria padrões de luz e sombra que são refletidos no piso da entrada. A luz filtrada através das árvores do jardim entra no piso da sala de estar e uma leve cortina metálica dança ao vento. Ainda que esteja no centro da cidade, a residência permite aos moradores desfrutar de mudanças de luz e da cidade a medida que transcorre o dia, vivendo conscientes das estações mutantes.

Fotografia: Koji Fuji / Nacasa & Partners Inc
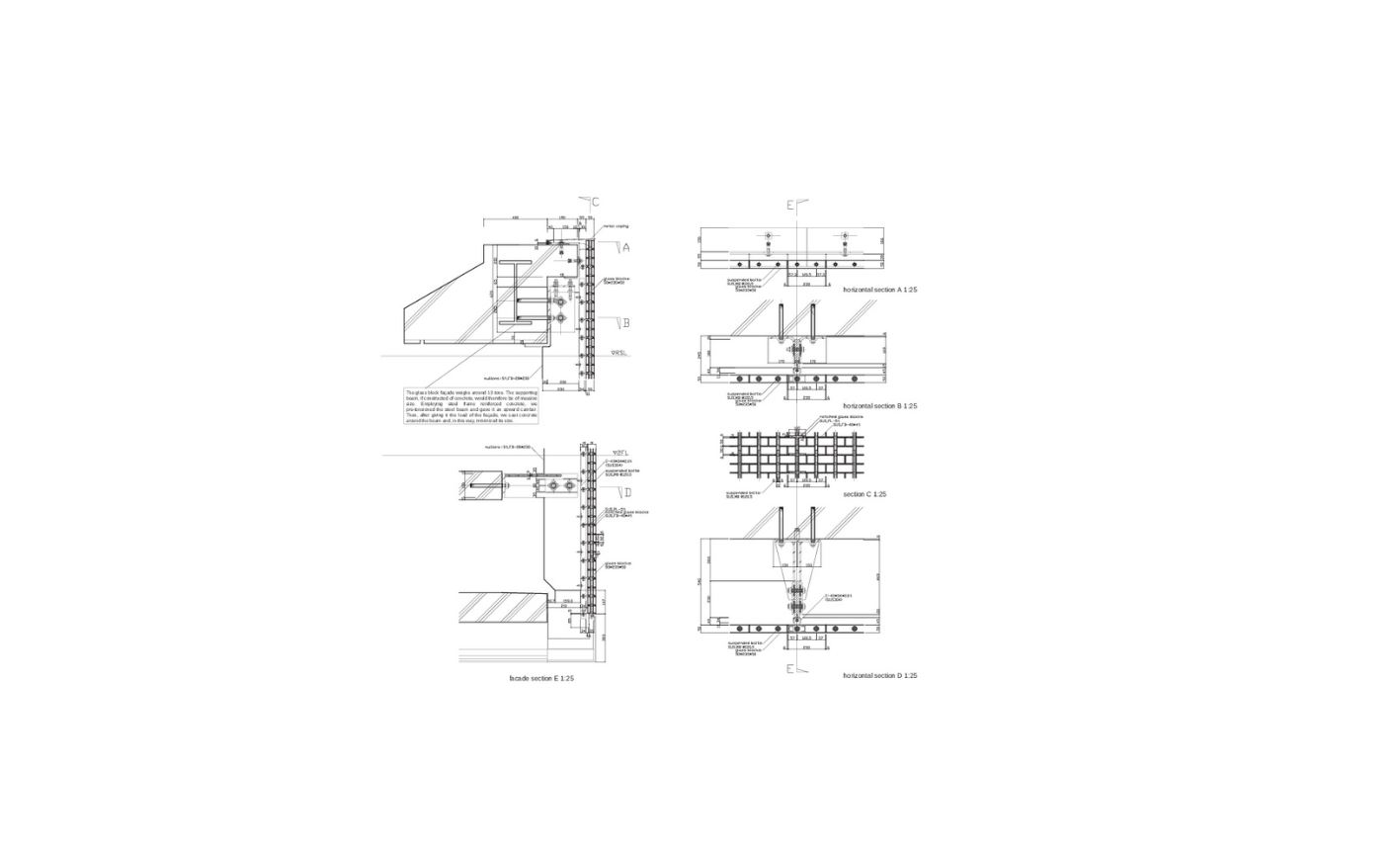
Fachada de Vidro Óptico
Foi criada uma fachada de aproximadamente 6000 blocos de vidro (50 mm x 235 mm x 50 mm). Os blocos de vidro, com sua grande área de massa por unidade, vedam eficazmente o som e permitem a criação de um jardim aberto e claramente articulado que admite a paisagem da cidade. Para realizar tal fachada, empregou-se um vidro fundido para produzir um nível de transparência extremamente alto a partir do borossilicato, a matéria-prima para o vidro óptico. O processo de fundição foi extremamente difícil, já que requeria um resfriamento lento para eliminar a tensão residual do interior do vidro e uma alta precisão dimensional. Entretanto, vidro reteve as asperezas do nível micro da superfície, mas recebemos abertos esse efeito que produziria ilusões ópticas inesperadas no espaço interior.

Fotografia: Koji Fuji / Nacasa & Partners Inc

Fotografia: Koji Fuji / Nacasa & Partners Inc
Cascata
A fachada, de 8,6 m x 8,6 m, se tornou tão grande que não poderia ser sustentada de forma independente se fosse construída em fileiras de blocos de vidro com somente 50 mm de profundidade. Portanto, perfuramos os blocos de vidro e colocamos 75 parafusos de aço inoxidável que os deixaria suspensos na viga acima da fachada. Entretanto, tal estrutura seria vulnerável à tensão lateral, por isso, junto com os blocos de vidro também utilizamos barras planas de aço inoxidável (40 mm x 4 mm) a intervalos de 10 centímetros. A barra plana está assentada entre os blocos de vidro de 50 mm de espessura para torná-la invisível e assim, criou-se uma junta uniforme de 6 mm entre os blocos. O resultado: uma fachada transparente quando é vista desde o jardim ou desde a rua. A fachada parece uma cascata que flui para baixo, dispersando a luz e refrescando o ar.

Fotografia: Koji Fuji / Nacasa & Partners Inc

Corte

Fotografia: Koji Fuji / Nacasa & Partners Inc
Relatos
A fachada de vidro pesa aproximadamente 13 toneladas. A viga de suporte, se fosse construída de concreto, seria de um tamanho massivo. Empregando o concreto reforçado com uma estrutura de aço tensionamos previamente a viga e conferimos à ela uma curvatura para baixo. Desta forma, após outorgar a carga da fachada, colocamos concreto ao redor da viga e, assim, minimizamos seu tamanho.

Fotografia: Koji Fuji / Nacasa & Partners Inc
Galeria do projeto:




